Im Folgenden soll die beratende Tätigkeit, das Mandat der KS-net AG im Vorfeld einer Sanierungsmassnahme beschrieben werden.
KS-net AG schlägt vor durch eine Messkampagne und gefolgt von Schlammprobennahme die genauen Grundlagen zu erarbeiten welche für eine exakte Offerte unabdingbar und sinvoll sind und zwar sowohl für Sie als Kunden wie auch für KS-net AG.
Nebst der Mächtigkeit der Schlammschicht gilt es auch andere Faktoren zu berücksichtigen. Dies sind Konsistenz, Dichte, Körnigkeit sowie die Feinstruktur des Schlamms welche für das Flockungsverhalten masgebend ist, und auch der Trockensubstanzwert welcher eine Basis für die zu färdernden Volumina bildet. Alle diese Werte sind ohne Proben nicht in Erfahrung zu bringen.
Es ist nicht dasselbe ob eine 50 cm dicke kompakte Schlamm-Sedimente mit einem hohen Prozentsatz an grobem eingebettetem Kies mit Sand und Mineralsstoffen und einer hohen Dichte vorliegt
ob ein difuser, sehr feinkörniger, humusreicher Schlamm mit einer kleinen Dichte vorliegt, welcher gute Flockungseigenschaften für die nachfolgende Eindickung und Entwässerung besitz und welcher zudem auch noch einen schönen Prozentsatz Organika aufweisst was wiederum Rückschlüsse auf eine vorteilhafte thermische Verwertung zulässt.
Es muss gepumt werden, doch dazu muss der Schlamm zuerst durch den Fräser des Schwimmbaggers in eine Viskosität versetzt werden damit die Schlammpumpe den Schlamm durch eine mitunter lange Schwimmleitung auch fördern kann. Zudem sind grobe Steine immer auch eine Gefahr für den Fräskopf des Schwimmbaggers. Diese können zu Beschädigungen führen was wiederum Betriebsunterbrüche und Verzögerungen nach sich zieht.
Die folgenden aufgelisteten Faktoren sind für ein gutes erfolgreiches Projekt MISSIONSKRITISCH und sollten daher durch eine Abklärung im Vorfeld des Projektes eruiert werden.

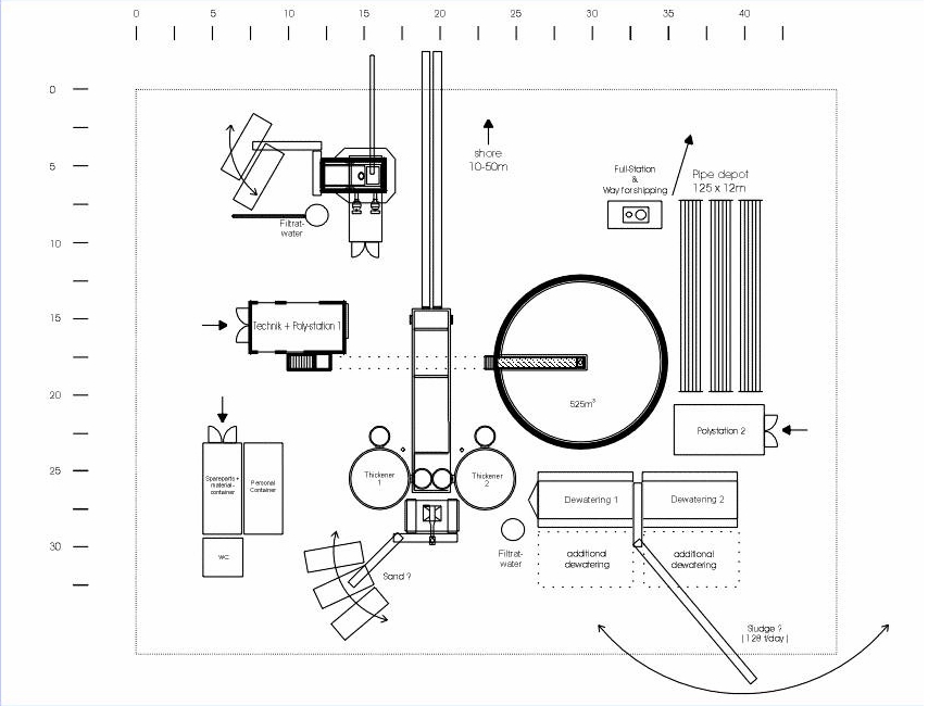
Im Anschluss an diese Datenerhebung welche als Vorprojekt für sich alleine auf Beratungs und Mandatsbasis offeriert und erbracht werden kann, wird KS-net AG eine Offerte ausarbeiten welche die folgenden weitergehenden Leistungen beschreibt.
Nach Vertragsunterzeichnung werden diese Arbeiten zügig angegangen und realisiert. Ein nachgeführter On-Line Projektplan und weitere Rapporte geben dem Kunden jederzeit Aufschluss über den Verlauf der Sanierungsarbeiten.
Die hier beschriebenen Tätigkeiten bilden das Ramenwerk und die Grundlagen für die Leistungserbringung im Rahmen einer Gewässersanierung durch KS-net AG.